松夏减震器,安全又耐用

咨询电话:

17317317121(微信同号)


橡胶减震器

JGD-1型立式水泵用剪切橡胶减震器

JGD-1型橡胶减震器简介
JGD-1橡胶减震器产品图

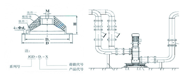
  JGD型橡胶剪切隔振器是由合成橡胶和内置金属件组成,经过硫化成圆锥体,橡胶部分受剪切力、具有较大的变形范围和较低的固有频率。

  工作温度范围在-5oC--+50oC,温度变化时,刚度也有所变化;阻尼比C/C0>0.07。

  我厂生产的JGD型橡胶剪切隔振器选用优质天然橡胶,云象**标1#天然橡胶,含胶量达到46%左右,具有良好的减震和降噪效果。

  JGD橡胶剪切橡胶减震器尺寸图:

JGD-1橡胶减震器结构图
JGD-1橡胶减震器参数表

您可能对以下内容感兴趣


减震知识

使用安装

案例展示